Kindergarten St. Josef | Waldmössingen
Sanierung und Erweiterung
Erfahren Sie mehr über die Sanierung und Erweiterung unserer Einrichtung in Waldmössingen
Ausgangslage
Wahrscheinlich gab es in Waldmössingen bereits vor 1900 einen Kindergarten, den damals noch die bürgerliche Gemeinde betrieb. Ab dem Jahr 1920, als Schwestern aus Reute nach Waldmössingen kamen, sicherten Verträge mit der Gemeinde die Betreuung der Kleinkinder. Erst 1969, mit Fertigstellung des heutigen Kindergartengebäudes, ging die Trägerschaft auf die Katholische Kirchengemeinde St. Valentin über.
Viele Erweiterungen und Anbauten prägten die folgenden Jahre.
1990 wurden die letzten Schwestern vom Mutterhaus abgezogen und wie in vielen Gemeinden endete eine Ära in der Kinderbetreuung durch Ordensfrauen.
Mit Einführung neuer gesetzlicher Vorgaben und aufgrund des ansteigenden Bedarfs, hat die Kirchengemeinde im Jahr 2011 mit dem Neubau einer „Kinderkrippe“ für unter Dreijährige begonnen. Im Oktober 2012 wurde der Betrieb eröffnet.
Die nunmehr viergruppige Einrichtung (3 Gruppen für ca. 75 Kinder „Über 3 (Ü3)“ und eine Gruppe für 10 Kinder „Unter 3 (U3)“ stößt im Jahr 2016 an ihre Belastungsgrenze. Die Kirchengemeinde beginnt mit Überlegungen, wie die Einrichtung in eine gute Zukunft geführt werden kann.
Freigabe der Mittel
Die komplexen Verhandlungen zur Erweiterung beginnen 2017 mit dem Vorschlag der Kirchengemeinde, ein Familienzentrum einzurichten. Der Gemeinderat der Stadt Schramberg beschließt am 29.04.2021 die Bezuschussung des Umbaus, der Erweiterung und der Sanierung des katholischen Kindergartens St. Josef in Waldmössingen.
Das Projekt wird mit rund 3,4 Mio. Euro veranschlagt. Für die Sanierungskosten des Altbestandes ohne die Kosten im Zusammenhang mit der Schaffung neuer Plätze, leistet die Kirchengemeinde weiterhin einen Zuschuss von 20 % (220.000 €). Auch bei den Betriebskostenzuschüssen bleibt alles beim Alten. Die finanzielle Belastung für die Kirchengemeinde beläuft sich künftig auf rund 50.000 € bei den Betriebskosten. Das entspricht rund 33 % des gesamten Haushaltsvolumens der Gemeinde.
Projektzeitplan
Es wird in Absprache mit den Eltern, dem Kindergartenförderverein und dem Kirchengemeinderat folgender Projektzeitplan festgelegt:
- Einbringung des Baugesuchs im August/September 2021.
- Das Baugesuch ist zweigeteilt.
- Die Maßnahme „Übergangslösung Modulbauten“ wird priorisiert verfolgt und soll bis Ende April oder Anfang Mai 2022 fertiggestellt sein. Danach ziehen die bisherigen Ü3-Gruppen in die Übergangslösung um. Die U3-Gruppe verbleibt im Neubau von 2012.
- Die Maßnahme „Sanierung- und Erweiterung Altbestand“ wird parallel mit Nachdruck vorangebracht. Ziel ist es, im Mai 2022 mit den Baumaßnahmen zu beginnen. Nach der Fertigstellung erfolgt der Umzug in die neuen Räumlichkeiten spätestens mit Beginn des Kindergartenjahres 2023/2024 im September 2023.
Die Vergaben bis zum 30.03.2022 (ca. 50 % des Volumens) liegen alle unter den kalkulierten Kosten; der Kostenplan ist bis dato eingehalten.
Das wird gebaut
Objekt: Kindergarten St. Josef
Hangstraße 3, Flst. 1048/2
78713 Schramberg-Waldmössingen
Planer:
Dipl. Ing. (FH) Harald Ganter
Übergangslösung „Modulbauten“
Hier klicken, um mehr zu erfahren
Bei der geplanten Baumaßnahme ist im Ausführungszeitraum ein Kindergartenbetrieb im bestehenden Kindergarten nicht mehr möglich.
In unmittelbarer Nähe zum Kindergarten befindet sich nördlich der Hangstraße ein unbebautes Grundstück (Flst. Nr. 1047/1). Das Grundstück ist erschlossen. Grundstückseigentümer ist die Stadt Schramberg. Das Gelände ist geneigt und müsste für die Errichtung eines Modulbaus in Teilbereichen eingeebnet werden.
Für die Auslagerung eines 3-gruppigen Kindergarten sind 28 Module in der Abmessung LxB= ca. 600×300 cm erforderlich.
Der Zugang könnte von der Hangstraße aus bzw. beim Fußweg zur Schule erfolgen.
Die Modulbauten werden ohne Mobiliar aufgestellt. Es muss geklärt werden welches Mobiliar vom bestehenden Kindergarten verwendet werden kann und was gekauft werden muss.
Die Modulbauten sollen ab Ende April 2022 zur Verfügung stehen. Der Umzug der drei Gruppen Ü3 soll sofort erfolgen, damit für die Altbausanierung Handlungsspielraum besteht.
Sanierung Kiga St. Josef | Übersichtsplan Modullösungen (276,42 KB)
Sanierung und Erweiterung des Altbestandes
Maßnahmenbeschreibung – Anbau, Umbau und Aufstockung Kindergarten St. Josef
Es sind erhebliche Raumdefizite vor allem für das Personal, für die Leitung und für Abstellbereiche vorhanden. Innerhalb des Gebäudes befinden sich zum Teil noch Fußböden, Wandoberflächen und technische Anlagen in einem unsanierten Originalzustand aus dem Entstehungsjahr 1969.
Ein Sanierungsstau ist offensichtlich. Folgende zum Teil schwerwiegende Mängel sind vorhanden:
- Dach, teilweise undicht
- Holzfenster, teilweise noch aus dem Entstehungsjahr
- Akustik, teilweise nicht vorhanden
- Brauchwasserverteilung – entspricht nicht den Anforderungen
- Heizung, teilweise noch Nachtspeicheröfen vorhanden.
- Beleuchtung
- Sicherheitsrelevante Maßnahmen, z.B. fehlende Rettungswegbeschilderung
- Entwässerung, vor allem im Gartenbereich
Die Planung sieht den Ausbau des bestehenden Kindergarten mit zwei zusätzlichen Gruppen vor. Die bestehende Tragstruktur des Gebäudes ist für eine Aufstockung in Holzbauweise geeignet.
Durch die grundlegenden Gegebenheiten wie Lage, Tragstruktur, angebaute neuwertige Kinderkrippe und Außenspielbereich kann bei einer Sanierung, Aufstockung und Anbau eine wirtschaftliche Lösung erzielt werden. Ein Abbruch und Neubau wären erheblich teurer.
Der erforderliche Raumbedarf für eine zusätzliche U3-Gruppe und Kiga-Gruppe einschl. der erforderlichen Nebenräume und Behebung der Raumdefizite kann nur durch eine Aufstockung und einen Anbau erreicht werden.
Sockelgeschoss
Hier klicken, um mehr zu erfahren
- Abbruch bestehender vorgelagerter Eingangsbereich, Büro und Abstellraum.
- Neuer Anbau mit Unterkellerung, Eingangsbereich, Treppenhaus mit Aufzug, Technik- und Abstellraum.
Sanierung Kiga St. Josef | Grundriss Sockelgeschoss (161,54 KB)
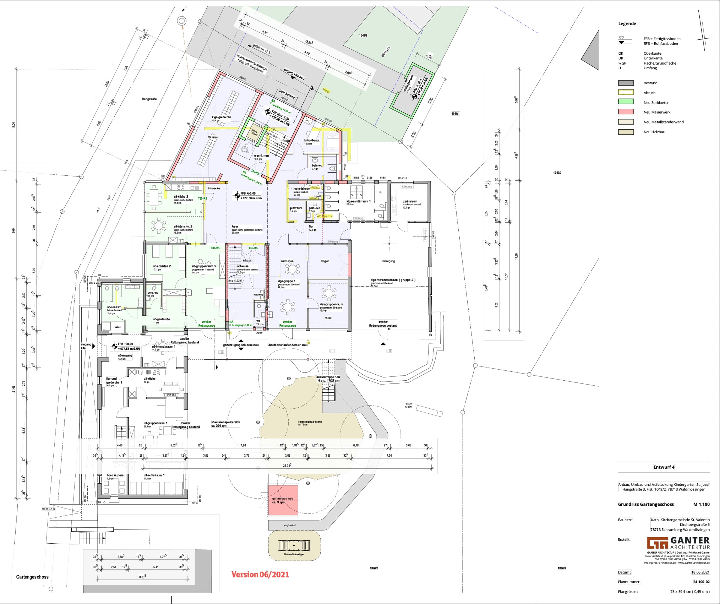
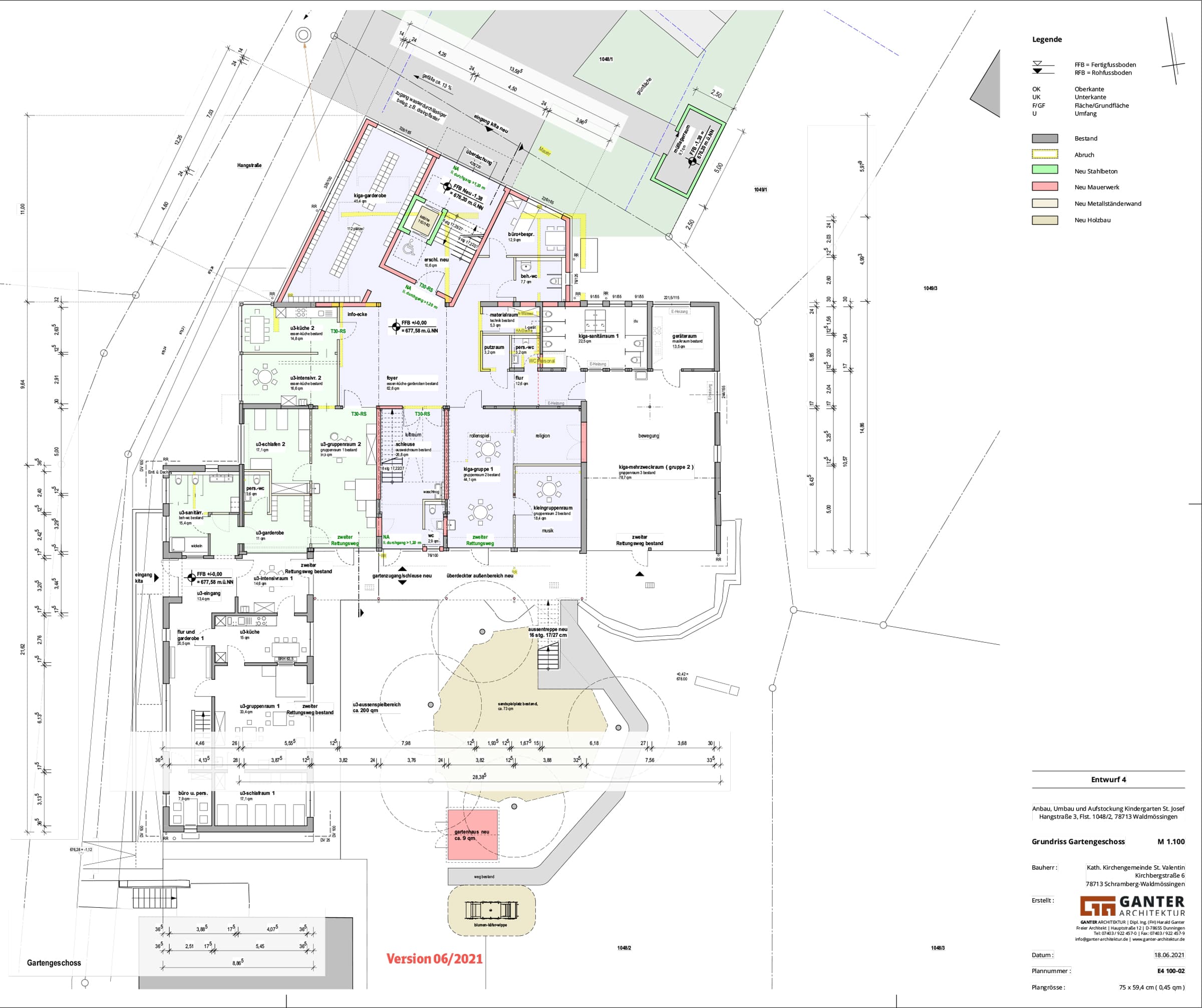
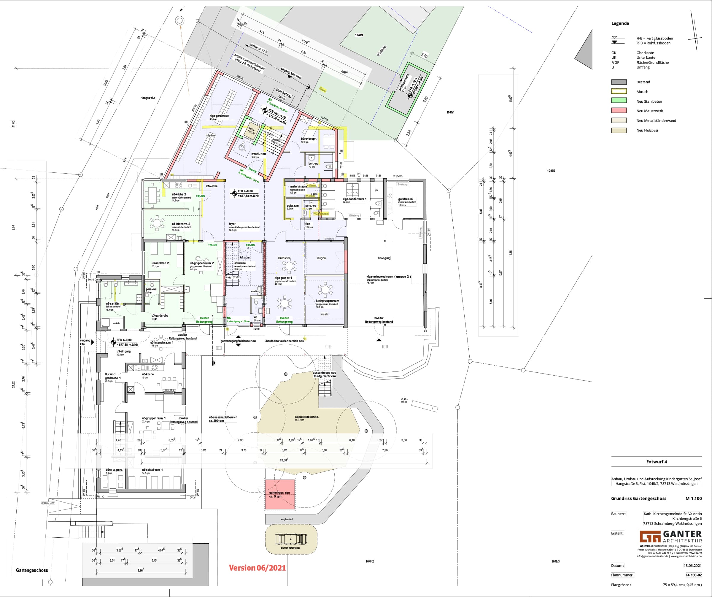
Gartengeschoss
Hier klicken, um mehr zu erfahren
U3
- Neuer Anbau mit Treppenhaus und Aufzug, Kiga-Garderobe, Beh.-WC und Leitungsbüro. Im Bestand befindet sich nun das Foyer, Gruppenraum 1, Gruppenraum 2, Personal-WC, Kindergarten-Sanitärräume, Putz-, Material- und Geräteraum.
- Im bisherigen Ausweichraum sind die Schleuse zum Garten mit Stiefelablage- und WC-Raum und der innere Aufgang zum Obergeschoss vorgesehen.
- Nach Süden zum Garten ist ein überdeckter Außenbereich (Sonnen- und Witterungsschutz) geplant.
Ü3
- Neue U3-Gruppe im Bereich des bisherigen Kiga-Gruppenraum 1 mit Schlafraum und Intensivraum. Krippenküche für neue U3-Gruppe, Personal WC, Garderobenbereich für neue U3-Gruppe,
- Ausbau Beh.-WC und Einbau eines zusätzlichen Wickelbereiches (Zusammenfassung U3- Sanitärraum). Erweiterung Fläche Außenspielbereich und neuer Außengeräteraum.
Die Krippe ist zusammenhängend und nach wie vor vom Kiga-Bereich getrennt jedoch gleichzeitig am neuen Haupteingang angegliedert und somit sehr gut erreichbar.
Sanierung Kiga St. Josef | Grundriss Gartengeschoss (317,94 KB)
Neues Obergeschoss
Hier klicken, um mehr zu erfahren
- Neuer Anbau mit Treppenhaus und Aufzug, Elternecke, Küche und Bistro und Multifunktionalraum. Aufstockung über Bestand mit zwei großen Kiga-Gruppenräumen und den erforderlichen Nebengruppenräume, Sanitärraum, Multifunktionalraum, Personal- und Besprechungsräume, Personal-WC, Galerie und innere Treppenverbindung zu Gartengeschoss.
- Nach Süden zum Garten ist ein vorgelagerter überdeckter Außenbereich (Sonnen- und Witterungsschutz) geplant.
Zugang und Parken
Hier klicken, um mehr zu erfahren
- Die Erschließung des Kindergartengrundstückes erfolgt von der Kirchbergstraße über die schmale Hangstraße (Fußgängerweg). Einzelne öffentliche Parkflächen befinden sich entlang der Kirchbergstraße.
- Das Kindergartengrundstück 1048/2 befindet sich in der sog. „zweiten Reihe“. Vor dem Kindergartengrundstück (nördlich) befindet sich das freie Grundstück 1048/1 mit direkter Anbindung an die Kirchbergstraße. Das Grundstück befindet sich im Eigentum der Stadt Schramberg. Das Grundstück eignet sich sehr gut für die Herstellung von Stellplätzen und für einen neuen Hauptzugangsweg. Dies wurde in der Planung berücksichtigt.
Sanierung Kiga St. Josef | Lage, Zuwegung und Parken (484,66 KB)
Projektabschluss 2023 und Übersicht
Der Kindergarten Waldmössingen erstrahlt ab August 2023 in neuem Glanz
Ein Rückblick auf das Projekt
Es ist geschafft. Schon seit 2016 zeichnete sich ein höherer Platzbedarf ab. Die komplexen Verhandlungen zur Erweiterung beginnen 2017 mit dem Vorschlag der Kirchengemeinde, ein Familienzentrum einzurichten. Mitte 2021 kommen die Grundsatzbeschlüsse und Ende des Jahres liegt der ergänzende Kindergartenvertrag vor. Die Umsetzungsplanung beginnt.
3,5 Millionen Euro Gesamtkosten und 500 Prozent mehr Personal
Die Umsetzung der Maßnahmen beginnt im November 2021. Mit Architekt Harald Ganter kann die Kirchengemeinde einen Fachmann gewinnen, der das Projekt nach einer ersten Vorplanung im Jahr 2017 durchgehend begleitet hat. Im März beginnen die Arbeiten für die Containerübergangslösung. Rückbau und Sanierung des Altbestandes beginnen – der Krippenbetrieb verbleibt im 2012 neu errichteten Gebäudeteil.
Trotz der in dieser Zeit riskanten Lage am Baumarkt gelingt es den Projektverantwortlichen, die Kosten- und Zeitpläne einzuhalten. Das Engagement der beteiligten Baufirmen ist großartig. Man spürt, dass es den Mitarbeitenden eine Freude ist, am Kindergarten St. Josef mit Hand anzulegen.
Parallel schreibt die Kirchengemeinde die neu zu besetzenden Stellen aus. Rund 500 Personalprozent sind offen – schließlich gelingt es zeitnah, sechs neue Mitarbeiterinnen zu gewinnen.
Gemeinsamer Kraftakt
Nach 24 Bauauschusssitzungen und über 120 Stunden ehrenamtlichen und hauptamtlichen Einsatzes bei der Planung, kann zum Beginn des Kindergartenjahres 2023/2024 der Umzug aus der Übergangslösung erfolgen. Am 28. August beginnt der reguläre Betrieb im neuen Kindergarten. 22 Mitarbeitende betreuen bis zu 120 Kinder in vier Kindergarten- und zwei Krippengruppen.
Die Freude bei den beteiligten Projektpartnern ist groß. Waldmössingen ist dank der Zusammenarbeit von Kirchengemeinde und Stadt um eine starke Einrichtung für die Kleinsten reicher. Die veranschlagten 3,5 Millionen Euro Gesamtkosten werden eingehalten.






